隨著經濟的發展,各企業都在深入拓寬鋼渣的綜合利用。由于鋼渣的硬度高,合理選擇使用的破碎設備是“破碎—磁選”工藝的關鍵。我們紅星機械廠經過半工業試驗,采用本公司生產的慣性圓錐破碎機作為鋼渣的破碎設備,經過生產調試運行,逐步掌握其設備特性和操作,實現了鋼渣效益的創收。
慣性圓錐破碎機簡介
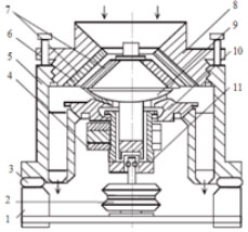
慣性圓錐破碎機的結構如圖1所示。

圖1慣性圓錐破碎機結構示意圖
1-底架 2-皮帶傳動裝置 3-減振元件 4-激振器 5-外殼 6-球面瓦 7-動、定錐襯板 8-定錐 9-動錐 10-動錐支撐 11-軸套
慣性圓錐破碎機機體通過減振彈簧安裝在底架上,破碎工作主要由動錐和定錐實現。物料夾在這兩個裝有保護襯板的錐體工作面,靠運動的襯板對物料摩擦時所施加的沖擊擠壓剪切力,或者靠物料彼此之間摩擦時的相互作用,完成對物料的破碎。慣性圓錐破碎機的電機動力源通過皮帶輪和啞鈴軸等傳動部件將動力傳給動錐軸套上的激振器,激振器旋轉產生離心力時,迫使動錐繞球面瓦的球心做旋擺運動,致使動錐與定錐之間的工作腔容積發生持續變化,達到對物料的破碎。

用普通破碎機進行鋼渣破碎時,由于鋼渣中會存在體積較大的鋼塊,經常會發生“卡鋼”的情況,情況嚴重時會造成設備的故障。而應用慣性圓錐破碎機對鋼渣破碎時,鋼渣中一般的小鋼塊由于慣性圓錐破具有良好的“過鐵”性能,小鋼塊經常會軋扁從破碎腔中直接排出,當出現大鋼塊(合金)將動錐卡住不動時,由于動錐與傳動機構之間不是剛性聯接,激振器將繞動錐軸繼續轉動,一定不會破壞傳動機構和主機,保證了設備的正常運轉。
鋼渣破碎工藝
傳統的鋼渣破碎工藝只經過鄂式破碎機進行初次破碎,破碎出來的產品粒度較大,如果直接對該粒度進行加工,會造成大量的浪費,嚴重影響生產效率。應用慣性圓錐破碎機改造后的鋼渣破碎工藝流程如圖2所示。

圖2鋼渣破碎工藝流程圖
生產應用情況
慣性圓錐破碎機從2014年4月投入生產至今,設備運行良好,能完成生產要求。在實踐生產中經過多次取樣測試,該設備主機轉速為990r/min時,電流170A~320A,產量為 60~75 t/h,該機取樣篩分結果如表2所示。
![]()
表2慣性圓錐破碎機取樣篩分表
經實測,慣性圓錐破碎機把鋼渣從-80mm破碎到-10mm及以下產品含量在90%以上,鋼渣細碎粒度相當理想,能夠充分滿足生產需求。
結語
利用慣性圓錐破碎機破碎鋼渣的生產線自正式投入生產后,經過1年多的生產實踐證實:慣性圓錐破碎機在給料粒度小于80mm、含水量小于3%、物料不含+20mm的硬金屬塊的條件下,工作可靠、穩定、安全,滿足鋼渣處理需求。
.jpg)
河南紅星礦山機器 ,專注價值,注重品牌,專業生產圓錐破碎機、鄂式破碎機等各種礦山破碎設備,受到客戶的一致好評,歡迎前來選購。選購電話:0371-67772626,總部地址:中國鄭州高新技術產業開發區梧桐街與紅松路交叉口中國高端礦機生產出口基地園區。